浦賀駅徒歩8分の月極駐車場2台分空きございます♪
横須賀市久比里2丁目に新築アパートを建設中です。賃料は8.9万円~9.5万円(管理費3,000円)です。令和8年3月中旬以降に入居可能となります。ご興味ございます場合には、同仕様・同広さの類似物件をご覧いただくことが可能ですので、お気軽にご連絡下さいませ。
久里浜エリアの希少な物件です。詳細の確認や、ご内見希望の場合にはお気軽にご連絡くださいませ。
2/1~利用開始可能です。
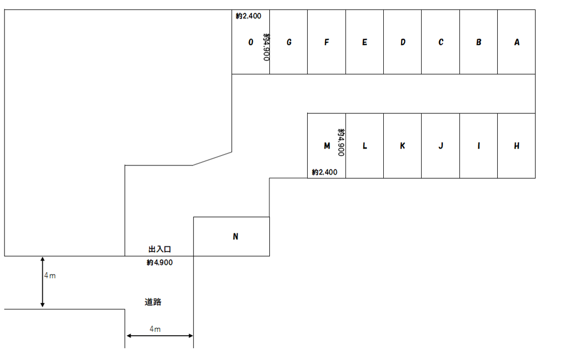
空き区画や詳細はお気軽にお問合せ下さいませ。
ローン解約の為、再販となります。
リフォーム済・空室の為、内見はいつでも可能です。
詳細はお気軽にお問合せ下さい!
リフォーム済一戸建、公開です
空き区画や詳細はお気軽にお問合せ下さいませ。
経済的な都市ガス、あったら嬉しい設備多数ございます。
テナント募集開始致しました。
業種はご相談くださいませ。
居住用はもちろん、初めての投資にも適したリフォーム済マンションです。
浦賀駅徒歩5分、南向きのお部屋です!
駅から平坦地、全棟カースペース2台、ライフスタイルにあわせて3~4LDKのプランがございます。小中学校至近・日当たり良好の全26棟!!詳細はお気軽にお問合せ下さい。
こちらの物件は完売となりました。たくさんのお問合せをいただきありがとうございました。
角地・ひな壇の為、陽当たり・開放感良好の低層住宅地内の新築一戸建て、ロフト・宅配ボックスあり
コースカベイサイドストア隣接、汐入駅、JR横須賀駅二線二駅利用可能な分譲マンションの公開です。
リフォーム済で現況空室の為、内覧はいつでも可能です。
お庭・ルーフバルコニー付の一戸建てを公開しました
サイトがリニューアルされました